產品簡介
一:Q941H/Y電動硬密封球閥介紹
Q941H/Y電動硬密封球閥適用于兩位切斷、調節的場合。閥與執行機構的連接采用直連方式,由 JW系列精小型電動執行器(也可根據用戶要求配置不同型號電子式電動執行機構或氣活塞式執行機構)與超短球閥組成。電動執行機構內置伺服系統,無須另配伺服放大器,輸入 4-20mA 信號及 220V AC 電源即可控制運轉。和普通電動球閥相比具有結構緊湊,體積小,重量輕,閥座與端面法蘭距離近,物料滯留少,密封性能優越等特點。
二:Q941H/Y電動硬密封球閥工作原理
凸輪偏心式單閥座的球體中心線相對于閥體中心線偏移a 、b , 閥座密封面偏心b。當閥桿繞O 點順時針旋轉90°, 則球體亦隨之旋轉90°, 并與閥座密封面緊密吻合, 當密封副間的摩擦力矩和填料與閥桿間的摩擦力矩大于介質壓力形成的力矩時, 閥門將達到可靠密封。由于閥門密封采用凸輪式偏心結構, 當閥門開啟時, 球體迅速脫離閥座密封面。閥門關閉時, 球體迅速與閥座密封面吻合。從而達到了開啟扭矩小, 關閉嚴密的目的。
三:Q941H/Y電動硬密封球閥結構特點
小口徑閥門體腔空間窄小, 通常的結構設計已不適用。因此, 閥桿末端加工成扁形并帶有短軸, 球體上下均有扁形槽及孔, 孔用于與上下閥桿連接起到固定球體, 限制球體自由度的作用, 同時起到平衡體腔與管線介質間壓力的作用。扁形槽與閥桿配合, 傳遞來自于手柄的扭矩。
四:Q941H/Y電動硬密封球閥制造加工
球體兩孔的同軸度和球體中心線相對于閥體中心線的偏心尺寸公差要求比較嚴格, 一般需要鏜床或數控機床加工。裝配前閥座密封面與球體面應配研, 然后將球體置于關閉位置, 安裝左閥體, 調整墊片, 擰緊螺釘, 靜壓灌水不漏, 則此閥在密封試驗下即可保證密封。
五:Q941H/Y電動硬密封球閥技術參數

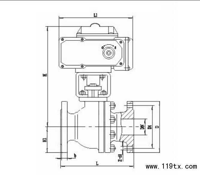
六:Q941H/Y電動硬密封球閥外形圖


